QUADRILOCALE IN PALAZZINA RIQUALIFICATA CON CAPPOTTO TERMICO

Modena - zona Villaggio Giardino

Rif: AM 1037
Condividi Linkedin Whatsapp Stampa
€ 270.000
Appartamento
144 Mq
4 Vani
Classe energetica Non indicata
3 Camere
2 Bagni
Garage
Ascensore
In palazzina appena riqualificata con Superbonus 110%, dotata di cappotto esterno e finiture moderne, Immobiliare Global propone in vendita un ampio appartamento al primo piano servito da ascensore, comodo, efficiente e subito abitabile.
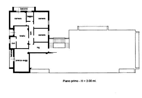
L'abitazione offre 120 mq interni ben distribuiti: un'accogliente zona giorno con sala separata dalla cucina abitabile di grandi dimensioni, perfetta per chi ama avere spazi funzionali e vivibili. La zona notte comprende tre camere da letto e due bagni, ideali per famiglie o per chi desidera una stanza in più per studio o ospiti.
Completo di tre balconi, che garantiscono luminosità e sfoghi esterni, l'appartamento include anche un garage singolo e una comoda soffitta di 35 mq, perfetta come deposito, lavanderia o spazio hobby.
Situato nella zona del Villaggio Artigiano, l'immobile gode di un'ottima posizione: tranquilla, servita e comoda alla viabilità principale, rendendo gli spostamenti quotidiani semplici e veloci.

Un appartamento ampio, efficiente e pronto da vivere, ideale per chi cerca comfort e qualità.

Dettaglio immobile

Contratto Vendita
Rif AM 1037
Prezzo € 270.000
Provincia Modena
Comune Modena
Zona Villaggio Giardino
Indirizzo Via Corridore
Superficie 144 mq
Vani 4
Camere 3
Bagni 2
Classe energetica Non indicata
Piano 1 / 3
Riscaldamento centralizzato
Spese condominiali € 208
Anno di costruzione 1970
Ascensore si
Garage 13 mq
Cucina abitabile
Soffitta 34 mq
Balcone 7 mq

Consistenze

Descrizione Superficie Sup. comm.
Principali
Immobile - 1° piano 117 Mq 117 Mqc
Box/Garage - piano interrato 13 Mq 6 Mqc
Soffitta - 4° piano 34 Mq 17 Mqc
Balcone - 1° piano 1 Mq 0 Mqc
Balcone - 1° piano 3 Mq 2 Mqc
Balcone - 1° piano 3 Mq 2 Mqc
Totale 144 Mqc

Planimetrie

Richiedi maggiori informazioni

Autorizzazione al trattamento dei dati personali+
Dichiaro di aver letto l'informativa sulla privacy ed accetto le condizioni d'utilizzo del servizio.
Riempi il campo con il codice riportato nell'immagine*
Codice Captcha
Chiamaci Contattaci