AMPIO MAGAZZINO IN PICCOLO CONDOMINIO

Modena - zona San Faustino

Rif: AM 1041
Condividi Linkedin Whatsapp Stampa
€ 150.000
Vendita
Magazzino
298 Mq
Classe energetica Non indicata
Modena zona San Faustino
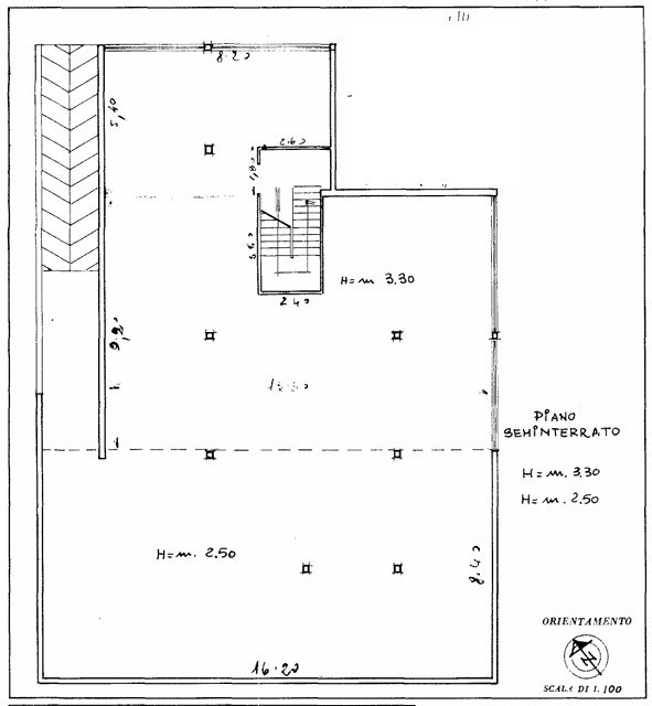
In posizione centrale, proponiamo magazzino di ampie metrature al piano seminterrato di una piccola palazzina, con accesso tramite rampa privata ed ingresso condominiale.
Superficie catastale di 298 mq con altezza di 3 mt.
La soluzione e' dotata di allarme ed impianto di doppia sommersa, ideale come punto di stoccaggio di materiale o vetture, rimanendo in una posizione a ridosso del centro ed a pochi minuti dalle tangenziali.

Dettaglio immobile

Contratto Vendita
Rif AM 1041
Prezzo € 150.000
Provincia Modena
Comune Modena
Zona San Faustino
Indirizzo Viale Guglielmo Marconi 4
Superficie 298 mq
Classe energetica Non indicata
Condizioni abitabile
Spese condominiali € 83
Ascensore no

Consistenze

Descrizione Superficie Sup. comm.
Principali
Magazzino - seminterrato 298 Mq 298 Mqc
Totale 298 Mqc

Video

Planimetrie

Richiedi maggiori informazioni

Autorizzazione al trattamento dei dati personali+
Dichiaro di aver letto l'informativa sulla privacy ed accetto le condizioni d'utilizzo del servizio.
Riempi il campo con il codice riportato nell'immagine*
Codice Captcha
Chiamaci Contattaci